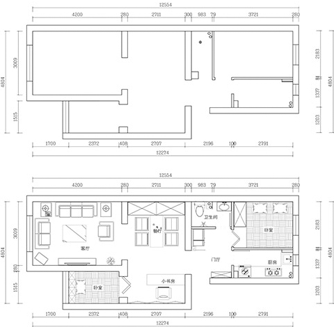
景先生是地地道道的北京人,据说这间房子还是父辈传下来的,从原来房子的平面布置图可以看出,房子只有60m2,卫生间只有2m2左右,邻近的卧室很大,有很大的空余空间没有充分利用,卫生间狭窄细长,活动起来不方便而且空间利用率低,显得十分拥挤,景先生想通过意上神州明星设计师来给自己家的老房子改造一下,于是景先生和意上神州就这样签订了一个美好的契约。

看起来景先生的房子年代确实很久了,房屋的墙面已经泛黄,卫生间的瓷砖已掉落,卧室的地板已经张开,确实需要好好地改造一下了。没问题,改造老房是我们意上神州的强项,下面就交给我们的明星设计师和金牌工长吧。

老房子在呼唤我要换新装了,拆拆拆、拆除旧貌换新颜,意上神州的工人师傅在给老房子换装了,卫生间的墙被拆除了,这样就可以扩充卫生间的空间了。

老房拆除清理完毕后,材料就要进场了,看看我们的工人把材料摆放的多么整齐、错落有致,这样也方便工人拿取,也不会让屋子看起来很乱,意上神州的工人服务就是这么周到。

材料也进场了,工人师傅就大刀阔斧的开始施工了,开槽、埋线、接线管,每个环节都是那么精细,水管走顶不走地,便于以后的修善。认真、负责的态度一直是意上神州服务的宗旨,我们把工作做到极致,把服务做到尽善尽美。

水电线管处理完毕后,就要开始抹灰、粘贴瓷砖了,看看我们的工人师傅粘贴的那么细,小编这里为工人师傅的认真工作的态度,手动点个赞。

瓷砖铺贴完毕后,就要到了验收的时刻了,别看监理手中的小锤子敲敲点点的,那是在检验瓷砖与墙面是否贴合,是否有空鼓现象,业主相信我们,同样我们也对业主负责。

墙面处理完毕,到了油工师傅大显身手了,工人师傅们把墙面粉刷的洁白无瑕。油工师傅们用他们手中的“画笔”妆点着屋子的墙面,绘成一幅美丽而又整洁的画卷。

水墨丹青的壁画、古香古气的桌椅、中国风般电视墙、山水相间的窗帘,将我们带入了江南水乡的美丽光景。景先生喜欢中国风的装修风格,房间里到处洋溢着中国风的韵味。成品家具都已安装完毕,竣工验收的日子就近在咫尺了。


历尽了45个日日夜夜,景先生的房子终于竣工了,可喜可贺。成品安装的图片就已经美轮美奂了,竣工时房屋就更加美不胜收了。那就一起来看看景先生带有浓厚中国风韵味的房子吧。

从图片中可以看出,景先生一定是一个书法爱好者,文房四宝——笔墨纸砚,装修的风格不仅融入了中国风的色彩,还融入了泰式和东南亚的风格,虽然是三种装修风格的碰撞,但是经过设计师的精心设计,三种风格搭配得当,真是珠联璧合,相得益彰。
